东莞vivo总部楼顶大字深化设计8个视角图解

2019-05-04 00:00:00        0

这几年vivo的发展可谓如日中天,要问vivo手机是哪里生产的,公司在哪里,可能很多人都答不上来。不在北上广深,而是在深圳的边上东莞虎门镇。一家非房地产企业可以在当前这个大环境下可以拿下东莞几百亩的土地,不简单。vivo的东莞总部大楼一期工程在去年也就是2018年基本竣工了,现在还在装修阶段,应该很快就会投入使用。其中外墙楼顶的发光型楼顶大字“v”“i”“v”“o”是由柯赛标识制作完成的,在前面的文章也对这个事情进行过介绍。今天的重点是将vivo项目的深化设计单独拿出来做一次分享,一共有8个视角。

1,全局视角,外立面与剖面和切面深化,从图示中可以看出,一共有3个部分,第一个是平面图,第二个是将楼体曲面展开以后的剖面图,第三个是切面安装图,深化图分别对链接件的3种规则做了详细的标注,同时对材料进行差异化标注,黑白向下的三角形区域代表260*60*7mmU型玻璃,红色短横线和圆点交错排列的区域代表10+12A+10mm钢化中空LOW-E玻璃,红色向下箭头区域代表8+1.52PVB+8mm钢化夹胶玻璃,这些细节从全局的角度对标识产品的深化做一个概括。

东莞vivo总部楼顶大字深化设计8个视角图解

2,安装视角,通过绿色正方形图示清晰的标注vivo大字骨架需要配合安装的预埋点,从深化图纸可以看出,一共29个,取消了大字“o”左侧的一个多余预埋点。同时明确了大字骨架对应预埋点在建筑物楼体的详细位置与尺寸,深化图上面是7楼和8楼的中间位置,略偏向8楼。

东莞vivo总部楼顶大字深化设计8个视角图解

3,内支撑骨架视角,4个大字逐个分解深化,对骨架的支点位置做具体的深化,确定长度宽度和厚度,同时采用5mm铁板内封焊接,方通M6*25外六角机丝,M6螺母对锁。

东莞vivo总部楼顶大字深化设计8个视角图解

4,光与色的视角,全方位的进行色彩处理,主要集中在外表面的水性漆和内喷高光白,灯布上贴上对应的3M-3630蓝色膜,断接处内焊T1mm铝板,作用是挡光,防止光束从缝隙处漏出,影响大字的美观度。

东莞vivo总部楼顶大字深化设计8个视角图解

5,大字加强筋视角,由于大字的尺寸和自重都比较大,对中空面积比较大的大字需要做加强筋处理,同时对内设钢结构部位进行贴防爆安全膜处理,从深化图也可以清晰的看到设计的思维过程。

东莞vivo总部楼顶大字深化设计8个视角图解

6,连接件视角,对大字“i”做了特别说明,采用8mmgan钢连接件,并根据该连接件的长度来适应LOGO位置。由于大字“i”的笔画比较笔直,为了保障大字不会发生形变,深化设计时特别指出了大字“i”的龙骨连接件需要调整加大。

东莞vivo总部楼顶大字深化设计8个视角图解

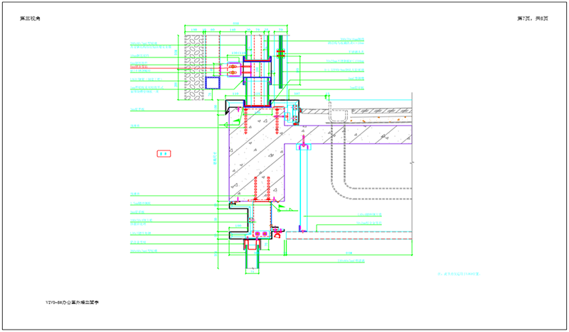
7,钢结构与玻璃幕墙关系视角,从构件到距离到结合方式,做进一步的深化,详细数据在图纸上均做了详细的体现。

东莞vivo总部楼顶大字深化设计8个视角图解

8,效果图新旧方案对照视角,原方案的大字边框以绿色线条显示,深化设计以后的新方案图外边框以红色线条进行图示,再把两个方案进行重叠,可以清晰的看到两种方案的最终效果差异。

东莞vivo总部楼顶大字深化设计8个视角图解

大型标识项目的标识产品设计图很多是由专业的设计公司来做的,而这种设计往往只能算是效果图的阶段,距离工程阶段还有较长的一段路需要走。效果图能否完美的在实际工程上实现,对深化设计师来说是一个挑战。既要保持效果图的风格和美观度,又要把选材和制作工艺与施工环节的多重因素照顾到,常规的设计师可能无法胜任。在标识行业有句话是这么说的,不是每一名设计师都能做深化设计,这是真的。

Copyright © 2004-2026 深圳柯赛标识智能科技有限公司 
粤ICP备08116350号  粤公网安备44030702001648号
深圳市市场监督管理局企业主体身份公示  免责申明

Top